티스토리 뷰
목차
어제 수방사 부지 공공분양의 일반분양 청약이 있었습니다.
22 가구 모집에 2만 5000명이 넘게 청약을 하여 1147.9:1을 기록하였습니다.
자격이 되시어 청약을 하신 분들 축하드립니다. 한강뷰를 볼 수 있는 곳으로 5억 로또아파트입니다.
10월 31일이 행운의 날이 되었으면 좋겠습니다.

수방사부지 공공분양 개요
수방사부지 공공분양은 서울시 동작구 노량진동 154-7번지 일원에 지어지는 아파트입니다.
지상 최고 35층으로 되며 5개 동으로 556 가구 규모의 단지입니다.
행복주택 85 가구와 군관사 208 가구를 제외한 263 가구가 공공분양으로 공급이 됩니다.
2023년 6월에 사전청약으로 224세대를 하였고 이번 10월 10일에 본청약을 하였습니다.
사전당첨자가 포기한 13 가구를 포함하여
이번에는 특별공급으로 30세대, 일반공급으로 9세대를 분양하였습니다.
수방사 부지 공공분양하는 이곳은 2028년 12월에 입주 예정입니다.
입지

동작구 수방사 공공분양의 입지는 서울 지하철 1호선과 9호선이 지나는 노량진역과 9호선 노들역 사이에 위치한
더블역세권입니다. 지하철 9호선을 이용하면 강남까지 30분이면 가능합니다.
여의도 용산까지의 근접성도 좋습니다. 올림픽대로와 한강대교, 동작대교등이 인접해 있어서 차량이용 시
서울전쳑에 이동하기가 편리합니다.
분양세대수

30 가구 특별공급 청약에는 1만 6724명이 신청해 평균 557:1이었습니다.
신혼부부 4 가구 모집에 5972명이 신청해 1493:1, 생애최초 6가구 모집에 6043명이 몰려서 1007:1의 경쟁률을 보였습니다. 신생아 8가구 모집에 3185명, 다자녀 4가구 모집에 1204명, 노부모부양 2 가구 모집에 293명이 각각 신청을 하였습니다.
공공분양 일반공급으로 22 가구 모집에 2만 5253명이 지원하여 1147.9:1을 기록하였습니다.
분양가
59제곱미터의 분양가는 9억 5300만 원입니다. 확장비는 660만 원~679만 원입니다.
사전청약 당시 추정분양가는 8억 7225만 원이었습니다. 최고가가 8000만 원가량 올랐습니다.
그래도 주변에 있는 래미안트윈파크 실거래가가 14억이 넘습니다. 전세가도 7억 5000으로 형성이 되어 있습니다.
안전마진이 5억 정도입니다.

청약일정 및 조건
모집공고일 : 9월 30일
특별공급: 10월 14일(월요일)
일반공급: 10월 15일(화)
당첨자발표일: 10월 31일
계약일 : 2025년 2월 26일~27일
전매제한 3년과 거주의무 3년이 있습니다. 재당첨제한도 10년이 있습니다.
당첨 커트라인이 청약저축 납입액이 3000만 원대로 예상하고 있습니다.
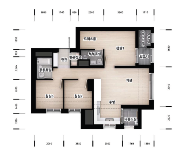
평면도

59A타입평면도입니다. 4 베이로 안방에 드레스룸까지 있습니다.

59B타입입니다. 거실이 넓어 보이는 타워형입니다.
자금계획은?
자금계획은 크게 부담스럽지는 않습니다.
현재 전세가가 7억 5천까지 가기에 70% 대출을 받아 실입주를 하거나 전세를 높고 잔금을 치르시면 될 것 같습니다.
분양가가 9억 5300만 원일 경우
계약금 9530만 원
LTV70% 대출 7억을 받거나 전세를 7억으로 놓으면
잔금은 1억 5700만 원이 필요합니다.
취득세 3200만 원과 확장비 670만 원을 더 준비하시면 됩니다.
3억 정도의 실투자금으로 서울에 내 집을 마련하는 기회입니다.
한강이 보이고 살기 좋은 곳에 살 수 있는 기회입니다.
청약하신 분들, 당첨되신 분들!!
미리 축하드립니다.